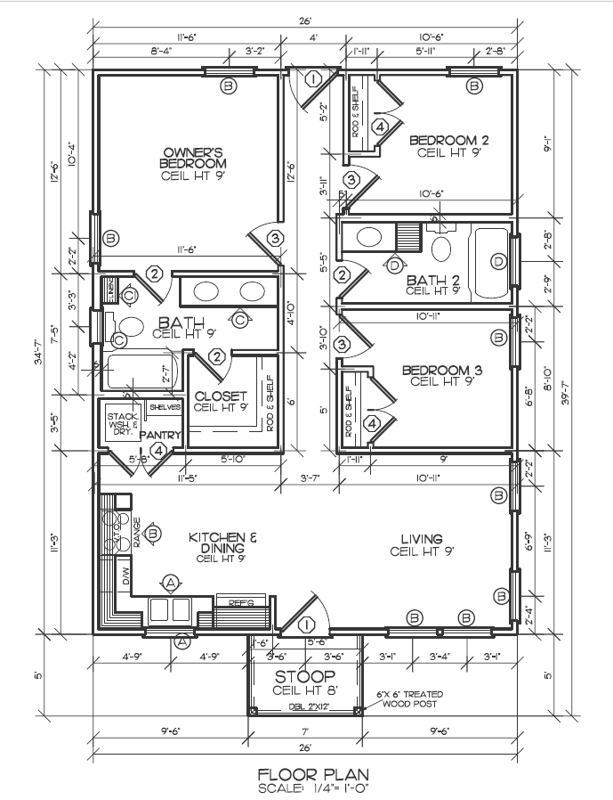
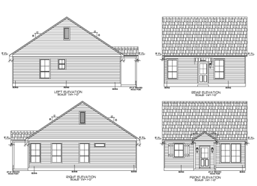
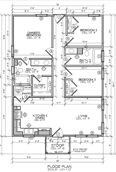
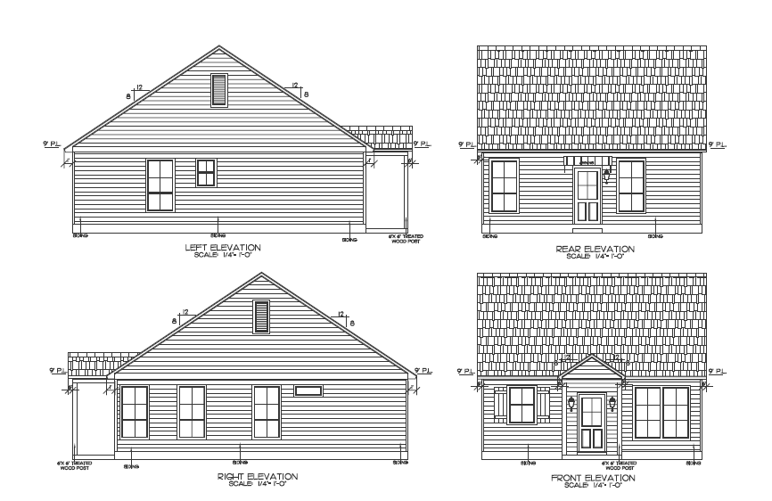
EDL Investments' mission is to rebuild residential housing in forgotten urban neighborhoods with safe and affordable housing for people in the housing voucher program in East Baton Rouge Parish. Please contact me to learn more about the new construction below at 5141 Jefferson Ave. B.R, La. 70806



